1 EtherCAT 网络接口:IN 为输入端口,OUT 为输出端口,100M 自适应速率,支持标准 RJ45 网口。
2 拨码开关:可用于配置从站 ID 标识,暂未开放。
3 电源输入端:24V DC,耦合器电源输入端是位于耦合器主体右下方的 6 个端子,其中 X1.1 和 X1.2 端子为 24V,X1.3 和 X1.4 为 24V 的 0V,X1.5 和 X1.6 为 PE 接大地,同极性(同色)端子模块内部已经短接。
4 TYPE-C 接口:该接口电气连接与通用标准不同,为内部测试使用,请勿连接防止短路!!!


SRT8200 电源输入端接线图
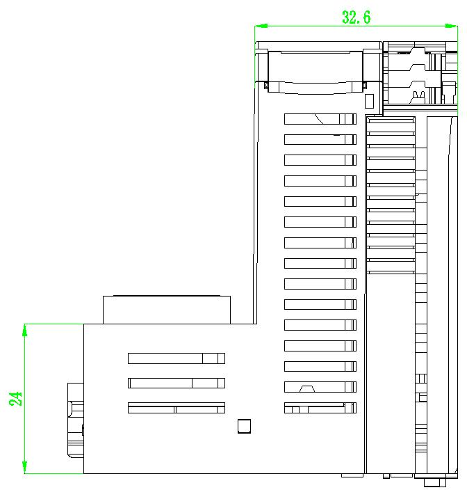
SRT8200 尺寸图

SRT8200 耦合器尺寸图
SRT8200 模组安装说明

先将耦合器固定在导轨上,之后将 IO 模块依次沿箭头方向推入 DIN 卡销,固定在导轨上,注意对齐模块中间缺口,请勿使用蛮力安装;
将耦合器橙色卡扣向导轨内侧(逆时针)旋转卡住导轨防止松动。
SRT8200 模组拆卸说明
首先应拆除本模块所有的信号电缆或电源电缆;
一只手按住模组其他位置,一只手拉动橙色拉杆将模块取下,请勿使用蛮力拆卸;将耦合器橙色卡扣向导轨外侧(顺时针)旋转脱离导轨。
注意,SRT1032、SRT2132、SRT2232 三种型号模块是通过内部螺丝固定的,拆卸时不可分离,必须整体拆下,请注意区分。

将 SRT 系列 IO 模组从导轨拆下示意图
模块接线说明接线端子参数说明

SRT 系列 IO 模块外形设计实现了统一化,接线端子数量增加到 20 个,可以 8 点配置一组 COM 端,产品更加灵活,模块接线端子自上到下分别定义为 X1(X1.1~X1.4),X2
(X2.1~X2.6), X3(X3.1~X3.4),X4(X4.1~X4.6),每个型号模块接线方式请参照对应模块说明书,接线端子各项参数如下表:
SRT 系列模块接线端子参数表
| 接线端子参数 | |
| 额定电流 | 4A |
| 额定电压 | 250V |
| 通道间距 | 3.81mm |
| 接线容量 | 0.2~1mm2 |
端子接线及剥线要求说明
SRT 系列 IO 模块的接线端子采用免螺丝设计,模块接线端子较为紧凑,接线时请先用剥线钳将导线剥去一定长度,剥好的导线需要加装管状预绝缘端头并用压线钳压紧, 请使用标准预绝缘端头,注意:剥线长度为 10mm。适用线径如下表,推荐您使用 AWG20(线径 0.5mm2)。
标准管状预绝缘端头尺寸对照表
| AWG | mm2 | D1 | D2 | L | L1 |
| 20 | 0.5 | 1 | 2.6 | 16 | 10 |
| 18 | 0.75 | 1.2 | 2.8 | 16 | 10 |
| 17 | 1 | 1.4 | 3 | 16 | 10 |

标准管状预绝缘端头 0510 尺寸示意图
端子接线实物图

SRT系列 IO 模块拆线用螺丝刀推荐尺寸图
请将处理好的线缆沿接线孔轻轻压入,接好后,反向用力,可明显感觉到线缆已经固定不动,接线完成;拆线时仅需一把一字型的螺丝刀,推荐刀头尺寸为:0.4mm*2.5mm, 请沿接线端子旁边的一字型凹槽(拆线专用压柄)轻轻按下,此时线缆即可轻松拆下。